Casa Huerces— Gijón (Asturias)
2022/(en desarrollo)
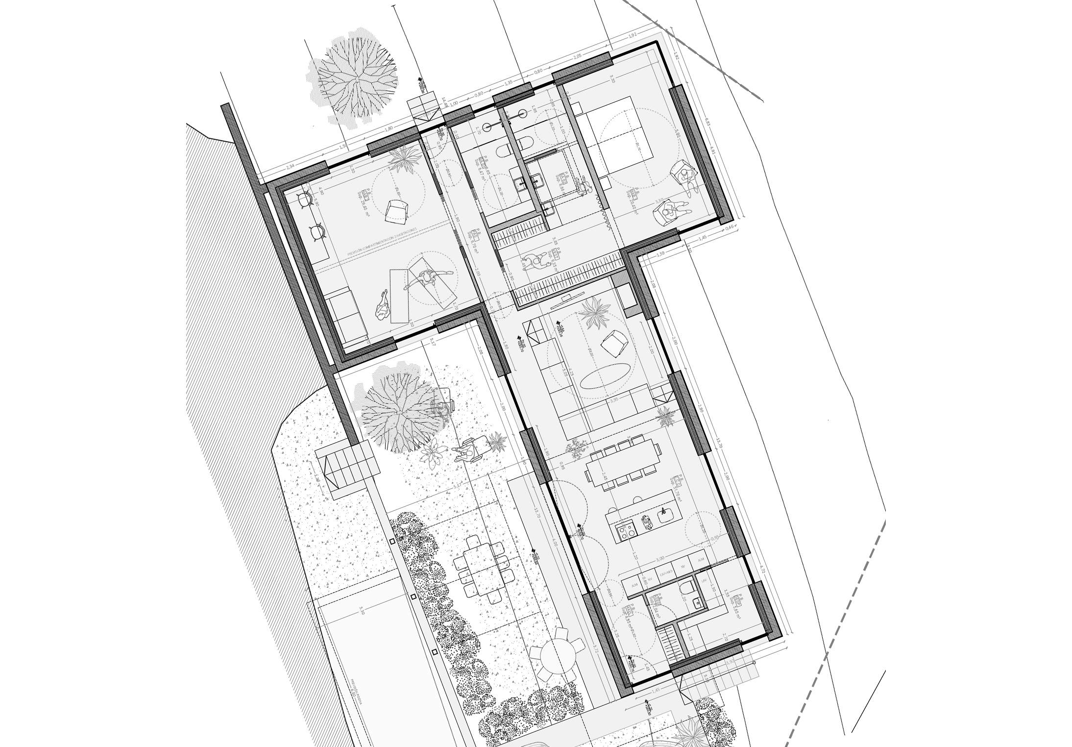
Vivienda Unifamiliar Aislada 180 m2, situada en Huerces, Gijón (Asturias).
Se sitúa en una parcela elevada sobre el municipio, con unas vistas privilegiadas de todo el conjunto urbano y rural de Gijón.
![]()
Las dependencias se van organizando desde el punto de acceso. Las zonas públicas paralelas a la parcela aprovechando el espacio de relación para la generación de un patio protegido vinculado a estas.
Las depencias privadas perperndicular al terreno, enterrándose y volándo sobre el mismo.
Se combinan las cubiertas planas con la cubierta a un agua, requerimientos técnicos y urbanísticos que dotan al conjunto de singularidad contenida.
![]()
Estructura de hormigón armado, para la contención del terreno que recoge toda la cubierta a modo de peto o cinturón.
El espacio de interior, alterna la estructura vista de la cubierta inclinada con falsos techos para pasos de instalaciones.
Se trata de una vivienda sostenible, adaptada al terreno. Y aunque su orientación va en perjuicio del aprovechamiento solar, las vistas sobre el paisaje circundante tienen una mayor importancia.
Arquitectura: Javier Redondo
Arquitectura técnica:
-
Fotografía y textos:
Javier Redondo
Construcción:
-







