Nitel House — Nava (Asturias)
2018/2020
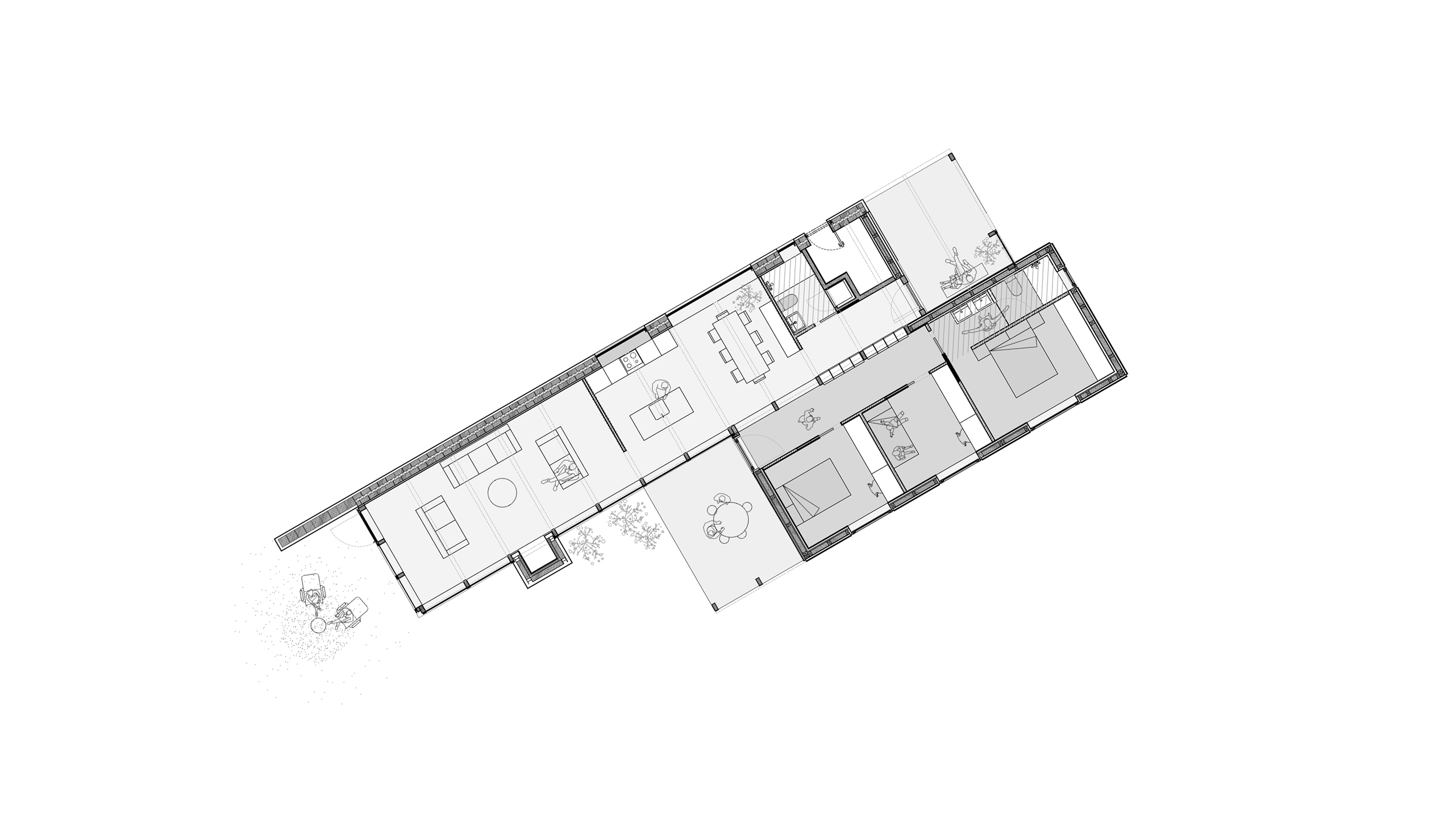
Vivienda Unifamiliar Aislada 150 m2, situada en Nava (Asturias).
La vegetación que delimita los linderos; castaños, nogales y plataneros de sombra; enfoca las vistas desde la parte edificable a las montañanas cercanas, haciendo partícipe al habitante del entorno próximo y lejano que lo rodea.
El edificio se proyecta a imagen de la arquitectura Mid-Century, actualizada y repensada hasta el punto de tornarse en una vivienda sostenible.
![]()
Surge del desplazamiento de una planta rectangular con cubierta a dos aguas, generando dos pabellones que se deslizan sobre si mismos para buscar la incidencia de los rayos solares en las zonas más públicas de la vivienda.
Su estructura, vista al interior, nos deja intuir el ritmo con el que el edificio fué compuesto, mediante una sucesión de pórticos centrales de madera.
Elementos industrializados, que facilitan el control de la obra y una correcta ejecución, evitando sobrecostes innecesarios, un correcto aislamiento de todos los cerramientos y garantizando la estanqueidad del aire.
![]()
La fachada del edificio varía a medida que nos introducimos en la parcela. Desde una piel de de vidrio en la zona más pública, una fachada de piedra en la cara norte, hasta una fachada de madera de alerce al natural en el pabellón que alberga las habitaciones.
El interés de los promotores y constructores por hacer un edificio singular y apropiado para el mundo rural ha dado lugar a esta intervención, una vivienda prefabricada sostenible respetuosa con el medio y su lugar de implantación.
Arquitectura: Javier Redondo
Arquitectura técnica:
Tamara García Fernández
Fotografía y textos:
Javier Redondo
Construcción:
Casa Norte










